U gebruikt een verouderde internetbrowser.
We raden u aan om de meest recente internetbrowser te installeren voor de beste weergave van deze website.
Een internetbrowser die up to date is, staat ook garant voor veilig surfen.

Graag een bezoek? Bel 0483 420 020

Wolvertemsesteenweg 68, 1785 Merchtem
Vraagprijs: € 155.000

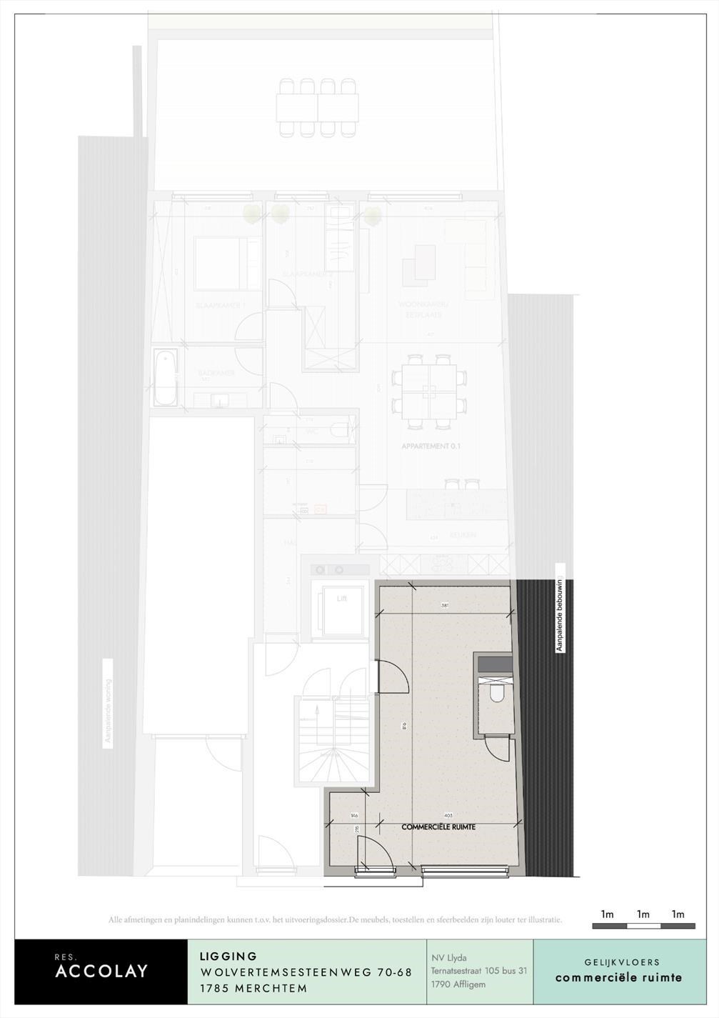
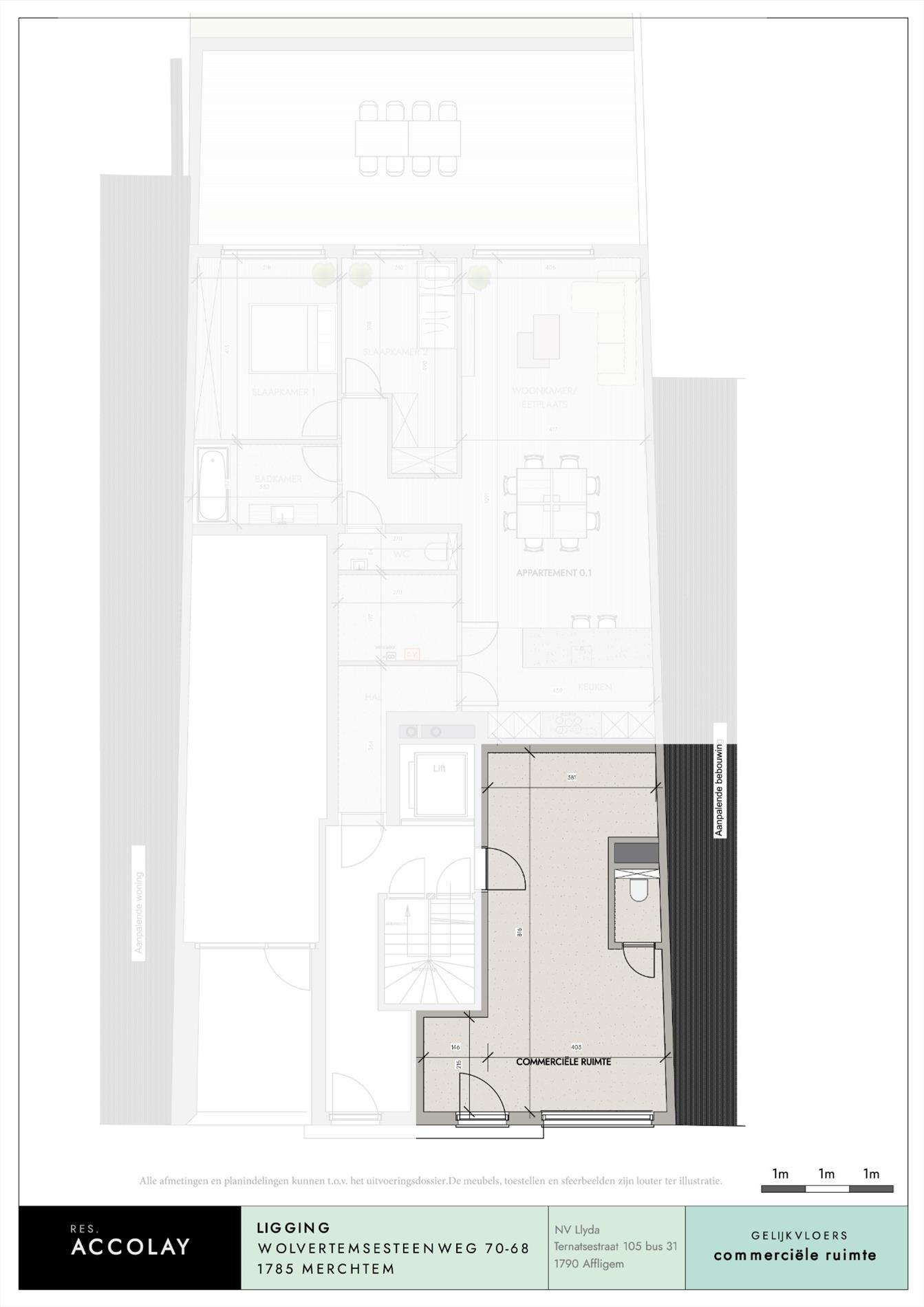
Omschrijving

Handels-/winkelruimte in Residentie Accolay

Residentie Accolay, biedt u mooie en kwaliteitsvolle nieuwbouwappartementen gelegen aan de Wolvertemsesteenweg. Op een boogscheut van centrum Merchtem, op wandelafstand van Delhaize Merchtem, en op minder dan 10km van de A12.
Met bijzondere aandacht voor het energiezuinige aspect en akoestische comfort.
Handelsruimte van 41 m² aan 155.000 EUR.


Kenmerken

Algemeen

Adres:Wolvertemsesteenweg 68
Merchtem
Referentie:Accolay H0.1
Vraagprijs:€ 155.000
Type:Commercieel kantoor
Beschikbaar vanaf:Bij akte

Informatieplicht

Overstromingsgevoelig:Niet meegedeeld
Overstromingsgebied:Niet meegedeeld
Erfgoed:Niet meegedeeld

Ligging

Downloads

Neem vrijblijvend contact op

Wenst u meer informatie of het pand te bezoeken? Contacteer ons vrijblijvend voor meer informatie. 
Wanneer wij uw aanvraag hebben ontvangen zullen wij verder contact met u opnemen. 


U moet akkoord gaan met het privacybeleid van deze website
* Verplicht in te vullen
Niet gevonden wat u zocht? Schrijf u dan vrijblijvend in en blijf op de hoogte van ons recentste aanbod.
Schrijf u in
Terug naar boven
Sluit menu Immo Behome