U gebruikt een verouderde internetbrowser.
We raden u aan om de meest recente internetbrowser te installeren voor de beste weergave van deze website.
Een internetbrowser die up to date is, staat ook garant voor veilig surfen.

Helaas, dit pand is verkocht

Graag een bezoek? Bel 0483 420 020

1785 Merchtem

Omschrijving

Halfopen bebouwing – 3 slpk – zeer rustige straat

Halfopen bebouwing met een bewoonbare oppervlakte van 165m2 (garage en werkplaats niet meegerekend) en een terreinoppervlakte van 3a39ca. Interessante ligging: aan een zeer rustige straat (geen doorgaand verkeer), maar toch nabij Merchtem centrum, winkels en scholen.

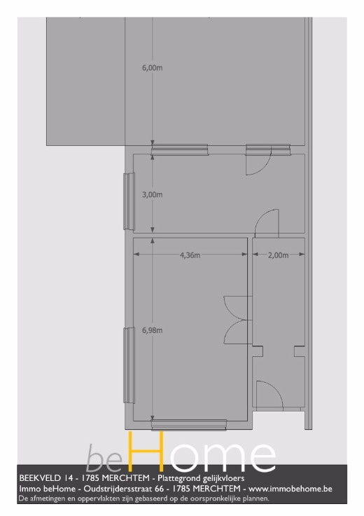
Gelijkvloers: inkomhal, leefruimte, keuken met eetplaats, veranda, garage, werkruimte en apart toilet.
Zuid-georiënteerde tuin.
1ste verdieping: 3 slaapkamers (18m2 – 17m2 – 13m2) en badkamer (ligbad, lavabo en toilet).
Kelder en zolder.
Garage en parkeermogelijkheid naast de woning.

Centrale verwarming op mazout. EPC 797 kWh/m2jaar – UC 1768528.
Enkele beglazing, met uitzondering tot de 2 grote ramen in de leefruimte.
Goede dakconstructie, nog te isoleren.
Woning bevindt zich in effectief overstromingsgevoelig gebied, maar niet in een afgebakende oeverzone of afgebakend overstromingsgebied.

Veel mogelijkheden!
Informatie of bezoek: Annelies Heyvaert - Immo beHome – 0483 420 020.<br />
Zeker een bezoekje waard!


Niet gevonden wat u zocht? Schrijf u dan vrijblijvend in en blijf op de hoogte van ons recentste aanbod.
Schrijf u in
Terug naar boven
Sluit menu Immo Behome